物件No.M725

レジーナ・ヴィラ熱海

価格1,980万円

展望温泉大浴場・海望む

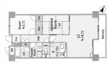
間取り
2LDK(和6帖・洋5.7帖)
専有面積
68.33m2バルコニー:8.34m2
所在地
熱海市水口町2丁目
交通
JR線 熱海駅  徒歩28分 

高台の静かな住宅地に位置するこじんまりとしたマンションです。熱海市街、海を一望する展望温泉大浴場があります。お部屋は使いやすい2LDKタイプです。

*間取り、方位等表記内容は現況を優先とします。

管理費等
管理費36,760円/月
修繕積立金16,300円/月
その他の費用上下水道料月額5704円
駐車場 10,000円/月
空き状況は都度確認
物件概要
構 造鉄骨鉄筋コンクリート
4階部分
築年月1991年4月
総戸数36戸
土地権利所有権
館内施設
大浴場温泉大浴場,サウナ
プール無し
ゲストルーム無し
その他施設
備考
戸別施設
テレビCATV
インターネットIKC
その他
備考2022年7月大規模修繕工事実施
管理
管理会社合人社計画研究所
勤務形態日勤 
管理形態全部委託
住環境
方位北東
眺望海,夜景
陽当たり普通
生活便普通
ペット
ペット不可
その他
現況空き
引き渡し相談
取引形態仲介

Copyright(C) 2012 Living-i All Rights Reserved.